Tel:027-364-6511受付:9:00~18:00 休業日:水曜日

[店舗兼住宅]高崎市引間町 167.85m²(50.77坪) [No.1247] 


   
物件名 [店舗兼住宅]高崎市引間町 167.85m²(50.77坪)
所在地 高崎市引間町
価 格 4,300万円
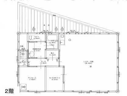
土地面積 167.85m²(50.77坪)
延床面積 141.46㎡(42.79坪)
地 目 宅地
建物構造 木造合金メッキ銅板葺2階建
都市計画 市街化調整区域
用途地域 無指定
築年月 平成29年9月
設 備 公営水道、浄化槽、東京電力、プロパンガス
周辺環境 イオンモール高崎 約1120m
セブンイレブン前橋元総社蒼海店 約630m
元総社蒼海店 約1110m
マルエドラッグ前橋元総社蒼海店 約1170m
取引形態 一般
接道状況 東側公道約5.5m、北側公道約18.4m
建ぺい率 70%
容積率 200%
その他 【学校区】国府小学校/群馬中央中学校
こだわりアイコン 2階以上 飲食店可

<< 前のページに戻る

↑ PAGE TOP